Теплый склад. Производство. от 500 м2 до 2080 м2

ул Промышленная, д. 3

1 352 000 руб.

?

$ 1 086

€ 979

650 руб./м²


2080 м²

1/1 этажей

Код объекта

131775

Предложение доступно для субагентов, авторизуйтесь

Теплый склад. Производство. от 500 м2 до 2080 м2

Код объекта: 131775.
Тип объекта: Складское помещение.
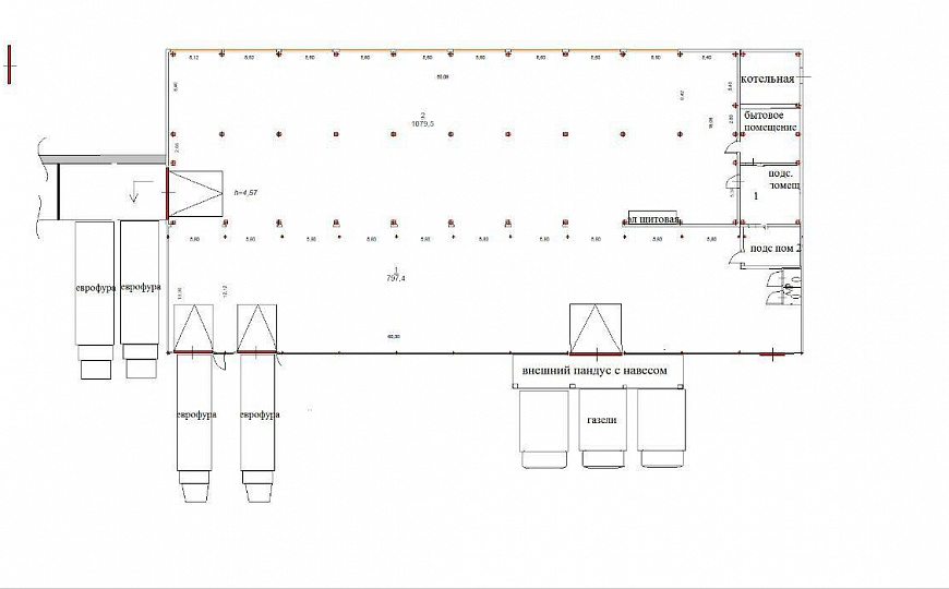
Площадь: 2080 м².
Этаж / Этажность: 1 / 1.
Назначения: Склад.

Описание и характеристики

От собственника! Без комиссии!

От собственника! Без комиссии!
Теплый склад класса B.
Основные характеристики:
- Жеcткий каркac здания из жeлeзобетoнных панeлeй и кeрамзитoбeтoнных блоков oбeспечивает прочность конструкции.

- Крыша выполнена из железобетона, покрытого качественным металлопрофилем.

- Высота потолков достигает 5,6 метров, что позволяет оптимально организовать пространство.

- Надежный топинговый беспылевой пол выдерживает нагрузку до 3000 кг/м².

- Электричество мощностью 300 кВт обеспечит бесперебойную работу вашего оборудования.

- Интернет-доступ от двух крупных провайдеров: ДОМ.РУ и Ростелеком.

- Автономное отопление от собственной газовой котельной дополняют водяные тепловентиляторы, поддерживая комфортную температуру круглый год.

- Просторные ворота позволяют легко загружать и разгружать автомобили разных габаритов:

* Большегрузы через трое секционных ворот размером 2,85×2,85 м, высота пандуса 1,2 метра.

* Среднетоннажные авто через двое ворот шириной 2 м, высотой 2,5 м. высота пандуса 60 см.

- Удобная пандусовая зона с навесом предназначена для одновременной погрузки семи малотоннажных машин типа Газель.

- Наличие удобных помещений общего пользования: проходная, раздевалка, комнаты отдыха персонала, оборудованные санузлы с центральной канализацией и водой.

- Эффективная система охраны и видеонаблюдения обеспечивают безопасность вашего имущества круглые сутки.

- Современная противопожарная инфраструктура включает внутренний пожарный водопровод, сигнализацию, систему эвакуации и дымоудаления.

- Круглосуточный режим работы логистического центра способствует гибкости вашей бизнес-деятельности.

- Оптимальные подъездные пути, парковочные места для легкового и грузового автотранспорта облегчают доступ к помещению.

- Дополнительные удобства: собственная столовая, услуги транспортной компании ПЭК, наличие свободных офисных площадей и гаражей.

- Регулярная уборка и очистка территории зимой от снега обеспечиваются собственной техникой.

Мы открыты к обсуждению всех условий аренды и готовы учесть ваши индивидуальные потребности для успешного ведения бизнеса! Работаем с НДС.

По всем вопросам можете обращаться к представителю собственника: Роман Х.

Перейти в карточку объекта в CRM: 131775.

Агентство Регионального Развития

+7 900 312-59-99

или оставьте ваш номер, и я перезвоню в течение 30 минут

Отправляя заявку вы соглашаетесь на обработку персональных данных

1 352 000 руб.

?

$ 18 075

€ 15 252

650 руб./м²


2080 м²

1/1 этажей

Код объекта

131775

Предложение доступно для субагентов, авторизуйтесь

Агентство Регионального Развития

+7 900 312-59-99

или оставьте ваш номер, и я перезвоню в течение 30 минут

Отправляя заявку вы соглашаетесь на обработку персональных данных

Похожие объявления

Посмотреть все похожие объявления
1/11
Код объекта: 406094.
Тип объекта: Торговое помещение.
Площадь: 350 м².
Этаж / Этажность: 1 / 1.
1/2
Код объекта: 414766.
Тип объекта: Готовый арендный бизнес.
Площадь: 47 м².
Этаж / Этажность: 1 / 5.
1/27
Код объекта: 415867.
Тип объекта: Помещение общественного питания.
Площадь: 150 м².
Этаж / Этажность: -1 / 10.
1/6
Код объекта: 421414.
Тип объекта: Помещение свободного назначения.
Площадь: 31 м².
Этаж / Этажность: 1 / 10.
1/7
Код объекта: 421413.
Тип объекта: Помещение свободного назначения.
Площадь: 38 м².
Этаж / Этажность: 1 / 10.

Не хочу искать, перезвоните мне!

Оставьте номер телефона, наш специалист свяжется с вами и поможет с подбором недвижимости!